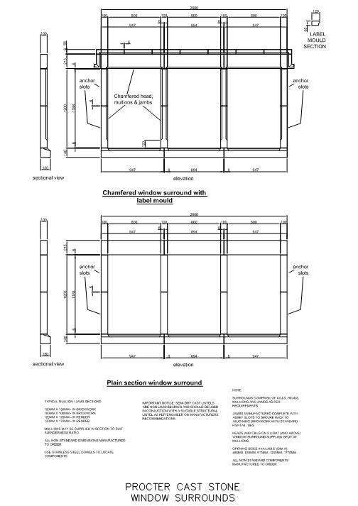
These CAD drawings have been prepared by Procter Cast Stone and do not necessarily conform to standard FastrackCAD drawing and layering conventions.
Available FastrackCAD Drawings
Please refer to our Terms & Conditions before downloading drawings.
These CAD drawings have been prepared by Procter Cast Stone and do not necessarily conform to standard FastrackCAD drawing and layering conventions.
Available FastrackCAD Drawings